【成約済】コーポ八幡1階(市原市八幡)
【お知らせ:こちらの物件は成約済みとなりました】
本物件「コーポ八幡1階(市原市八幡)」は成約済みとなりました。多数のアクセスをいただき誠にありがとうございました。
地図
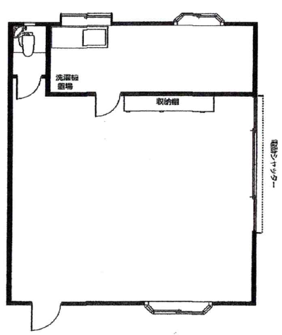
間取り

物件概要
・物件名:コーポ八幡1階
・仲介手数料:賃料の1ヶ月分(税別)
・賃料:成約済
・管理費等:ケーブルテレビ月額550円
・契約期間:2年
・更新料:新賃料の1ヶ月分
・所在地:千葉県市原市八幡1634番地1
・交通:JR内房線「八幡宿」駅 徒歩7分
・構造/所在階:木造2階建1階部分
・築年月:1991年3月
・専有面積:43.03㎡
・採光面:南西
・保険等:加入要
・賃貸保証:加入要
・駐車場:1台付
・設備:公営水道・LPガス・本下水
・取引態様:仲介
写真






ライフインフォメーション
・セブンイレブン市原菊間店 徒歩4分
・セブンイレブン八幡宿駅東口店 徒歩7分
・SENDO八幡店 徒歩11分
・八幡クリニック 徒歩3分
・清川眼科医院 徒歩10分
・タンネンバウム 徒歩2分
・やぶそば 徒歩6分
・YAWATAJUKU KOKESHI 徒歩9分
・市原スポレクパーク 徒歩11分
辰巳地所のご紹介
株式会社辰巳地所では、新築戸建やリノベーションマンションを中心に、仲介手数料最大無料(0円)で物件をご紹介しております。初期費用を大幅に抑えることで、その分をお子様の教育費に充てたり、将来への備えとして貯蓄することが可能です。
気になる物件がある方はもちろん、「まずは資金計画から相談したい」という方も大歓迎です。お問い合わせフォームやLINEから、お気軽にお問い合わせください。
■対応エリア:千葉市・市原市及び周辺市町村(お気軽にご相談ください)
■取扱物件:土地・新築戸建・中古戸建・中古マンション・収益物件
■購入の仲介手数料無料又は半額
■新築戸建・リノベーションマンションの仲介手数料最大無料
■住宅ローンアドバイザー/FPによる住宅ローン相談
■住宅ローン手続代行無料
■諸費用計算書作成します
■売却の仲介手数料半額
■売却査定無料
お問い合わせ
・特定電子メール法に基づき、営業・広告宣伝メールの送信を拒否します。
・仮名・偽名・イニシャル等でお問い合わせの方には、対応できない場合があります。




