【成約済】ダイアパレス蘇我Ⅵ 4階
【お知らせ:こちらの物件は成約済みとなりました】
本物件「ダイアパレス蘇我Ⅵ 4階」は、おかげさまで成約済みとなりました。多数のアクセスをいただき誠にありがとうございました。
千葉市・市原市で賢く家を買うなら「仲介手数料最大無料」の当社へ
当社では千葉市・市原市を中心に、新築一戸建てやリノベーションマンションのご紹介を行っております。
SUUMOやアットホームで見つけた「気になる物件」はございませんか?他社サイト掲載物件も、原則当社で取り扱い可能です。
・購入時の仲介手数料: 最大無料(※)
・売却時の仲介手数料: 物件価格の1.5%+3万円(税別)
・サポート: 住宅ローンアドバイザー・FPによる専門的な資金計画相談
※仲介手数料が無料になる仕組み:売主様から当社へ手数料が支払われる物件は、お客様からの手数料を無料に。それ以外の物件も、一般的な相場の半額である「1.5%+3万円(税別)」で承ります。
まずはお問い合わせフォームまたは公式LINEから、気になる物件のURLをお送りください。無料判定をスピーディーに行います!
お問い合わせ
・特定電子メール法に基づき、営業・広告宣伝メールの送信を拒否します。
・仮名・偽名・イニシャル等でお問い合わせの方には、対応できない場合があります。
物件概要
ダイアパレス蘇我Ⅵ 4階の仲介手数料は0円です。
新規リフォーム工事完成しました。
・物件価格:成約済
・専有面積(壁芯):78.79㎡(約23.83坪)
・バルコニー面積:10.91㎡(約3.3坪)
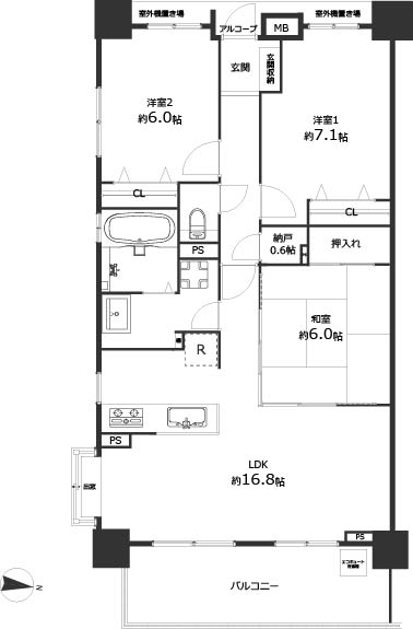
・間取り:3LDK
・交通:JR京葉・内房・外房線「蘇我」駅 徒歩19分
京成千原線「千葉寺」駅 徒歩13分
・所在階:4階
・住所:千葉県千葉市中央区宮崎町663-8
・構造/階数:鉄筋コンクリート造8階建4階部分
・土地権利:所有権
・築年月:2008年2月
・管理費:月額9,900円
・修繕積立金:月額15,760円
・固都税年額:118,948円(令和7年度)
・管理形態:全部委託(通勤)
・管理会社:株式会社東急コミュニティー
・分譲会社:ダイア建設株式会社
・施工会社:青木あすなろ建設株式会社
・総戸数:51戸
・現況:空室
・引渡日:相談
・駐車場:月額5,000円~8,500円(空無し)
・バイク置場:月額2,000円(空有り)
・駐輪場:無償(空有り)
・ペット飼育:可(2頭まで・成長時の体長100cm以下)
・オートロック:有り
・エレベーター:有り
・修繕積立金総額:26,494,034円(2024年11月30日現在)
地図
間取り
![[仲介手数料0円]新規リフォーム工事完成|ダイアパレス蘇我Ⅵ 4階3,090万円](https://www.ttm-est.com/wp-content/uploads/2025/12/ダイアパレス蘇我VI406-まどり.jpg)
新規リフォーム内容
・システムキッチン新規交換(IHコンロ)
・ユニットバス新規交換
・浴室乾燥機新規交換
・洗面化粧台新規交換
・温水洗浄機能付トイレ新規交換
・洗濯機防水パン新規交換
・フローリング上張り
・シーリングライト取付
・襖張替
・畳表替
・クロス張替
・ハウスクリーニング他
おすすめポイント
・アフターサービス保証付
・角住戸
・二面採光
・陽当り、眺望良好
・宅配BOX
・ペット飼育可
・新耐震基準
・オール電化マンション
・2021年大規模修繕工事実施済
周辺環境
・宮崎北第2公園 徒歩2分
・リブレ京成千葉寺店 徒歩13分
・フォルテ蘇我 徒歩14分
・ベルクフォルテ蘇我店 徒歩14分
・ローソン千葉宮崎町店 徒歩6分
・サンドラッグ蘇我店 徒歩11分
・こまどり幼稚園 徒歩11分
・千葉寺保育園分室 徒歩14分
・千葉市立宮崎小学校 徒歩12分
・千葉市立蘇我中学校 徒歩24分
・千葉メディカルセンター 徒歩17分
ローン返済例
・借入金額:3,090万円
・借入先:住信SBIネット銀行
・変動金利:年0.948%
・借入期間:35年
・毎月の返済額:86,479円
・毎月の総支払額:112,139円(住宅ローン+管理費・修繕積立金)
写真
![[仲介手数料0円]新規リフォーム工事完成|ダイアパレス蘇我Ⅵ 4階3,090万円](https://www.ttm-est.com/wp-content/uploads/2025/12/1.jpg)
![[仲介手数料0円]新規リフォーム工事完成|ダイアパレス蘇我Ⅵ 4階3,090万円](https://www.ttm-est.com/wp-content/uploads/2025/12/ダイアパレス蘇我VI406-まどり-1.jpg)
![[仲介手数料0円]新規リフォーム工事完成|ダイアパレス蘇我Ⅵ 4階3,090万円](https://www.ttm-est.com/wp-content/uploads/2025/12/2.jpg)
![[仲介手数料0円]新規リフォーム工事完成|ダイアパレス蘇我Ⅵ 4階3,090万円](https://www.ttm-est.com/wp-content/uploads/2025/12/26-768x1024.jpg)
![[仲介手数料0円]新規リフォーム工事完成|ダイアパレス蘇我Ⅵ 4階3,090万円](https://www.ttm-est.com/wp-content/uploads/2025/12/25.jpg)
![[仲介手数料0円]新規リフォーム工事完成|ダイアパレス蘇我Ⅵ 4階3,090万円](https://www.ttm-est.com/wp-content/uploads/2025/12/4-768x1024.jpg)
![[仲介手数料0円]新規リフォーム工事完成|ダイアパレス蘇我Ⅵ 4階3,090万円](https://www.ttm-est.com/wp-content/uploads/2025/12/3-768x1024.jpg)
![[仲介手数料0円]新規リフォーム工事完成|ダイアパレス蘇我Ⅵ 4階3,090万円](https://www.ttm-est.com/wp-content/uploads/2025/12/5.jpg)
![[仲介手数料0円]新規リフォーム工事完成|ダイアパレス蘇我Ⅵ 4階3,090万円](https://www.ttm-est.com/wp-content/uploads/2025/12/12-1024x768.jpg)
![[仲介手数料0円]新規リフォーム工事完成|ダイアパレス蘇我Ⅵ 4階3,090万円](https://www.ttm-est.com/wp-content/uploads/2025/12/11-1024x768.jpg)
![[仲介手数料0円]新規リフォーム工事完成|ダイアパレス蘇我Ⅵ 4階3,090万円](https://www.ttm-est.com/wp-content/uploads/2025/12/6.jpg)
![[仲介手数料0円]新規リフォーム工事完成|ダイアパレス蘇我Ⅵ 4階3,090万円](https://www.ttm-est.com/wp-content/uploads/2025/12/15-1024x768.jpg)
![[仲介手数料0円]新規リフォーム工事完成|ダイアパレス蘇我Ⅵ 4階3,090万円](https://www.ttm-est.com/wp-content/uploads/2025/12/13.jpg)
![[仲介手数料0円]新規リフォーム工事完成|ダイアパレス蘇我Ⅵ 4階3,090万円](https://www.ttm-est.com/wp-content/uploads/2025/12/14-1024x768.jpg)
![[仲介手数料0円]新規リフォーム工事完成|ダイアパレス蘇我Ⅵ 4階3,090万円](https://www.ttm-est.com/wp-content/uploads/2025/12/15-1-1024x768.jpg)
![[仲介手数料0円]新規リフォーム工事完成|ダイアパレス蘇我Ⅵ 4階3,090万円](https://www.ttm-est.com/wp-content/uploads/2025/12/16-1024x768.jpg)
![[仲介手数料0円]新規リフォーム工事完成|ダイアパレス蘇我Ⅵ 4階3,090万円](https://www.ttm-est.com/wp-content/uploads/2025/12/17-1024x768.jpg)
![[仲介手数料0円]新規リフォーム工事完成|ダイアパレス蘇我Ⅵ 4階3,090万円](https://www.ttm-est.com/wp-content/uploads/2025/12/18-1024x768.jpg)
![[仲介手数料0円]新規リフォーム工事完成|ダイアパレス蘇我Ⅵ 4階3,090万円](https://www.ttm-est.com/wp-content/uploads/2025/12/8.jpg)
![[仲介手数料0円]新規リフォーム工事完成|ダイアパレス蘇我Ⅵ 4階3,090万円](https://www.ttm-est.com/wp-content/uploads/2025/12/9-768x1024.jpg)
![[仲介手数料0円]新規リフォーム工事完成|ダイアパレス蘇我Ⅵ 4階3,090万円](https://www.ttm-est.com/wp-content/uploads/2025/12/10.jpg)
![[仲介手数料0円]新規リフォーム工事完成|ダイアパレス蘇我Ⅵ 4階3,090万円](https://www.ttm-est.com/wp-content/uploads/2025/12/7-768x1024.jpg)
![[仲介手数料0円]新規リフォーム工事完成|ダイアパレス蘇我Ⅵ 4階3,090万円](https://www.ttm-est.com/wp-content/uploads/2025/12/20-1024x768.jpg)
![[仲介手数料0円]新規リフォーム工事完成|ダイアパレス蘇我Ⅵ 4階3,090万円](https://www.ttm-est.com/wp-content/uploads/2025/12/23-768x1024.jpg)
![[仲介手数料0円]新規リフォーム工事完成|ダイアパレス蘇我Ⅵ 4階3,090万円](https://www.ttm-est.com/wp-content/uploads/2025/12/24-1024x768.jpg)
![[仲介手数料0円]新規リフォーム工事完成|ダイアパレス蘇我Ⅵ 4階3,090万円](https://www.ttm-est.com/wp-content/uploads/2025/12/28-1024x719.jpg)
![[仲介手数料0円]新規リフォーム工事完成|ダイアパレス蘇我Ⅵ 4階3,090万円](https://www.ttm-est.com/wp-content/uploads/2025/12/27-1024x768.jpg)
お問い合わせ
・特定電子メール法に基づき、営業・広告宣伝メールの送信を拒否します。
・仮名・偽名・イニシャル等でお問い合わせの方には、対応できない場合があります。




