【成約済】千葉市稲毛区稲毛東6丁目新築戸建全2棟
【お知らせ:こちらの物件は成約済みとなりました】
本物件「千葉市稲毛区稲毛東6丁目新築戸建全2棟」は成約済みとなりました。多数のアクセスをいただき誠にありがとうございました。
千葉市・市原市で賢く家を買うなら「仲介手数料最大無料」の当社へ
当社では千葉市・市原市を中心に、新築一戸建てやリノベーションマンションのご紹介を行っております。
SUUMOやアットホームで見つけた「気になる物件」はございませんか?他社サイト掲載物件も、原則当社で取り扱い可能です。
・購入時の仲介手数料: 最大無料(※)
・売却時の仲介手数料: 物件価格の1.5%+3万円(税別)
・サポート: 住宅ローンアドバイザー・FPによる専門的な資金計画相談
※仲介手数料が無料になる仕組み:売主様から当社へ手数料が支払われる物件は、お客様からの手数料を無料に。それ以外の物件も、一般的な相場の半額である「1.5%+3万円(税別)」で承ります。
まずはお問い合わせフォームまたは公式LINEから、気になる物件のURLをお送りください。無料判定をスピーディーに行います!
お問い合わせ
・特定電子メール法に基づき、営業・広告宣伝メールの送信を拒否します。
・仮名・偽名・イニシャル等でお問い合わせの方には、対応できない場合があります。
千葉市稲毛区稲毛東6丁目新築戸建 全2棟
千葉市稲毛区稲毛東6丁目の新築戸建をご紹介します。
JR総武・中央線「稲毛」駅徒歩13分。
本物件の仲介手数料は「無料」です。
お気軽にお問い合わせください。
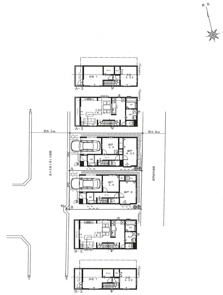
千葉市稲毛区稲毛東6丁目新築戸建 土地図・間取り

物件概要
・物件価格
A号棟:-
B号棟:-
・住所:千葉県千葉市稲毛区稲毛東6丁目
・交通:JR総武・中央線「稲毛」駅 徒歩13分
京成線「京成稲毛」駅 徒歩10分
・土地権利:所有権
・土地面積
A号棟:70.02㎡(約21.18坪)
B号棟:71.41㎡(約21.60坪)
・建物面積
A号棟:98.94㎡(約29.92坪)
B号棟:98.32㎡(約29.74坪)
・地目:宅地
・用途地域:第1種住居地域
・都市計画:市街化区域
・建ぺい率:60%
・容積率:200%
・防火指定:法第22条区域
・現況:2026年2月完成予定
・引渡日:2026年2月中旬以降
・接道:南西側公道 幅員約6.5m
・ライフライン:公営水道・公共下水・都市ガス
周辺環境
・千葉市立稲毛小学校 徒歩8分
・千葉市立稲毛中学校 徒歩9分
・南小中台保育園 徒歩7分
・小中台幼稚園 徒歩5分
・セブンイレブン千葉北小中台店 徒歩6分
・アコレ稲毛小中台 徒歩7分
・マルエツ稲毛店 徒歩10分
・クリエイトSD稲毛小中台 徒歩8分
・千葉小仲台八郵便局 徒歩6分
・小仲台会館 徒歩11分
・稲毛東公園 徒歩4分
支払例
・借入金額:4,690万円
・借入先:住信SBIネット銀行
・変動金利:年0.948%
・借入期間:35年
・毎月の返済額:131,258円
写真



お問い合わせ
・特定電子メール法に基づき、営業・広告宣伝メールの送信を拒否します。
・仮名・偽名・イニシャル等でお問い合わせの方には、対応できない場合があります。




