【成約済】セザールスカイタワー銀座東3階
【お知らせ:こちらの物件は成約済みとなりました】
本物件「セザールスカイタワー銀座東3階」は成約済みとなりました。多数のアクセスをいただき誠にありがとうございました。
千葉市・市原市で賢く家を買うなら「仲介手数料最大無料」の辰巳地所へ
当社では千葉市・市原市を中心に、新築一戸建てやリノベーションマンションのご紹介を行っております。
SUUMOやアットホームで見つけた「気になる物件」はございませんか?他社サイト掲載物件も、原則当社で取り扱い可能です。
・購入時の仲介手数料: 最大無料(※)
・売却時の仲介手数料: 物件価格の1.5%+3万円(税別)
・サポート: 住宅ローンアドバイザー・FPによる専門的な資金計画相談
※仲介手数料が無料になる仕組み:売主様から当社へ手数料が支払われる物件は、お客様からの手数料を無料に。それ以外の物件も、一般的な相場の半額である「1.5%+3万円(税別)」で承ります。
まずはお問い合わせフォームまたは公式LINEから、気になる物件のURLをお送りください。無料判定をスピーディーに行います!
お問い合わせ
・特定電子メール法に基づき、営業・広告宣伝メールの送信を拒否します。
・仮名・偽名・イニシャル等でお問い合わせの方には、対応できない場合があります。
新規リフォーム物件・投資用としてもおすすめです
「セザールスカイタワー銀座東3階」をご紹介します。
新規リフォーム工事完成済み。
複数駅・路線利用可能な好立地。
投資用としてもおすすめです。
注意事項として、間取りが1Kのため、原則として住宅ローンは利用できません。
本物件の仲介手数料は0円です。
地図
販売図面

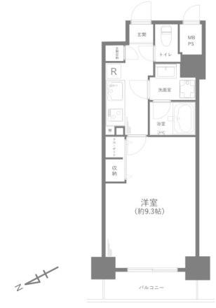
間取り

写真






物件概要
・物件価格:成約済
・専有面積(壁芯):31.87㎡(約9.64坪)
・バルコニー面積:3.85㎡
・MB・PS面積:1.11㎡
・方位:北西向き
・間取り:1LDK
・交通:東京メトロ有楽町線「新富町」駅 徒歩4分
東京メトロ有楽町線「月島」駅 徒歩9分
東京メトロ日比谷線「八丁堀」駅 徒歩8分
東京メトロ日比谷線「築地」駅 徒歩8分
・住所:東京都中央区湊3-11-8
・構造:鉄筋コンクリート造12階建3階部分
・土地権利:所有権
・築年月:1997年9月
・管理費:月額9,810円
・修繕積立金:月額9,750円
・管理会社:株式会社穴吹ハウジングサービス
・管理方式:全部委託(日勤)
・分譲主:株式会社セザール
・施工会社:五洋建設株式会社
・総戸数:47戸
・現況:空室
・引渡日:相談
・ペット飼育:不可
・駐車場:月額40,000円
・駐輪場:無償
リフォーム内容
・システムキッチン(浄水器付:W1650)
・ユニットバス(追焚・換気乾燥機付・1216)
・洗面室(洗面化粧台・洗濯用水栓・洗濯パン)
・トイレ(温水洗浄便座一体型便器)
・その他(照明器具、建具、スイッチコンセント、給湯器)
・床:フローリング貼(キッチン・洋室・廊下)
・フロアタイル貼(玄関・洗面室・トイレ)
・壁・天井クロス貼
・ハウスクリーニング
おすすめポイント
・複数路線・駅利用可能
・新規リフォーム物件
・投資用としてもおすすめ
・日勤管理
・アフターサービス保証付
|セザールスカイタワー銀座東3階 周辺環境
・中央区立京橋図書館 徒歩4分
・中央区立桜川公園 徒歩4分
・ファミリーマート八丁堀二丁目店 徒歩4分
・BONGENCOFFEE Tokyo Nihonbashi 徒歩5分
・松屋銀座 徒歩15分
・銀座三越 徒歩16分
・無印良品銀座 徒歩16分
・歌舞伎座 徒歩16分
お問い合わせ
・特定電子メール法に基づき、営業・広告宣伝メールの送信を拒否します。
・仮名・偽名・イニシャル等でお問い合わせの方には、対応できない場合があります。




