【成約済】サンクタス蘇我シーズンエアシティ4階
【お知らせ:こちらの物件は成約済みとなりました】
本物件「サンクタス蘇我シーズンエアシティ4階」は成約済みとなりました。多数のアクセスをいただき誠にありがとうございました。
千葉市・市原市で賢く家を買うなら「仲介手数料最大無料」の当社へ
当社では千葉市・市原市を中心に、新築一戸建てやリノベーションマンションのご紹介を行っております。
SUUMOやアットホームで見つけた「気になる物件」はございませんか?他社サイト掲載物件も、原則当社で取り扱い可能です。
・購入時の仲介手数料: 最大無料(※)
・売却時の仲介手数料: 物件価格の1.5%+3万円(税別)
・サポート: 住宅ローンアドバイザー・FPによる専門的な資金計画相談
※仲介手数料が無料になる仕組み:売主様から当社へ手数料が支払われる物件は、お客様からの手数料を無料に。それ以外の物件も、一般的な相場の半額である「1.5%+3万円(税別)」で承ります。
まずはお問い合わせフォームまたは公式LINEから、気になる物件のURLをお送りください。無料判定をスピーディーに行います!
お問い合わせ
・特定電子メール法に基づき、営業・広告宣伝メールの送信を拒否します。
・仮名・偽名・イニシャル等でお問い合わせの方には、対応できない場合があります。
物件概要
サンクタス蘇我シーズンエアシティ4階の仲介手数料は0円です。
・物件価格:-
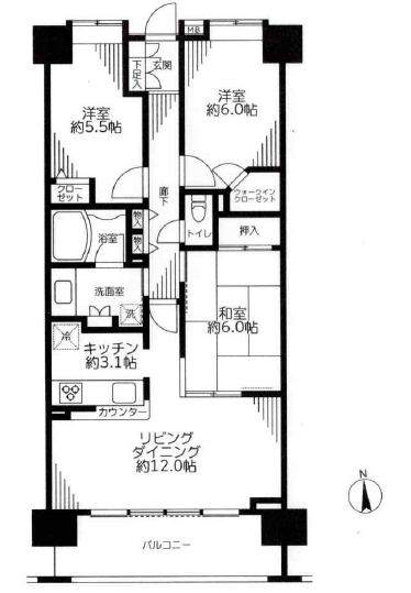
・専有面積(壁芯):72.60㎡(約21.96坪)
・バルコニー面積:9.94㎡(約3.00坪)
・間取り:3LDK
・交通:JR京葉・内房・外房線「蘇我」駅 徒歩20分
京成千原線「千葉寺」駅 徒歩12分
・住所:千葉県千葉市中央区宮崎町670-1
・構造/階数:鉄筋コンクリート造地下1階9階建
・土地権利:所有権
・築年月:2007年3月
・管理費:月額14,200円
・修繕積立金:月額7,000円
・管理形態:全部委託(日勤)
・管理会社:株式会社大京アステージ
・分譲会社:オリックス不動産株式会社
・施工会社:株式会社守谷商会
・総戸数:127戸
・現況:空室
・引渡日:相談
・ペット飼育:可(細則有り)
・オートロック:有り
・エレベーター:有り
地図
間取り
![[仲介手数料0円]サンクタス蘇我シーズンエアシティ4階2,380万円(税込)](https://www.ttm-est.com/wp-content/uploads/2025/12/スクリーンショット-2025-12-19-170827.png)
写真




設備
・オール電化
・食洗機
・浴室乾燥機
・IHクッキングヒーター
・ディスポーザー
周辺環境
・宮崎北第2公園 徒歩2分
・千葉寺ふくろう公園 徒歩2分
・石橋記念公園 徒歩5分
・ファミリーマート千葉青葉の森通り店 徒歩4分
・ベルク蘇我店 徒歩14分
・リブレ京成 千葉寺店 徒歩15分
・千葉市立宮崎小学校 徒歩13分
・千葉市立蘇我中学校 徒歩20分
住宅ローン返済例
・借入金額:2,380万円
・借入先:住信SBIネット銀行
・変動金利:年0.948%
・借入期間:35年
・毎月の返済額:66,608円
・毎月の総支払額:87,808円(住宅ローン+管理費・修繕積立金)
お問い合わせ
・特定電子メール法に基づき、営業・広告宣伝メールの送信を拒否します。
・仮名・偽名・イニシャル等でお問い合わせの方には、対応できない場合があります。




